Capannone in vendita

Pozzolengo, Via Monte Olivi
€ 1.500.000
10 locali 10 locali
2800 Mq 2800 Mq
4 bagni 4 bagni

Capannone in vendita

Pozzolengo, Via Monte Olivi

Descrizione annuncio

COSA SAPERE DELL'IMMOBILE


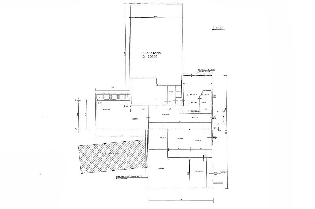
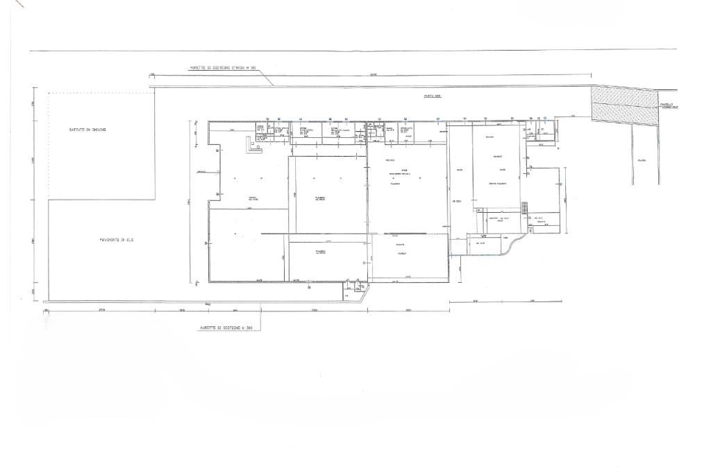
Nel comune di Pozzolengo, proponiamo in vendita un ampio capannone con spazio commerciale di circa 2800 metri quadrati, situato al piano terra, ideale per diverse tipologie di attività.

DESCRIZIONE E PARTICOLARITÀ


Il Capannone è situato in Via degli Oleandri 4, nel comune di Pozzolengo (BS), in Località Monte degli Olivi. La proprietà si estende su una superficie complessiva di circa 2800 metri quadri ed è suddivisa in due blocchi principali. Il primo comprende un laboratorio artigianale di circa 883 metri quadri con altezza interna di 3,50 metri e un’area esterna di circa 1600 metri quadrati. Il secondo blocco si sviluppa su una superficie di circa 1839 metri quadri così suddivisa: magazzino, deposito, uffici, area commerciale di rivendita. Include una tettoria esterna di circa 140 metri quadrati. A completamento, è presente un’ulteriore area esterna di circa 7000 metri quadri.

Gli uffici sono dotati di impianto di riscaldamento e raffrescamento mediante pompe di calore, mentre il laboratorio è parzialmente riscaldato. La proprietà è inoltre dotata di tre impianti fotovoltaici con potenza rispettiva di 98,90 kWp (suddivisi in due sezioni da 54,28 e 44,62 kWp) e due ulteriori impianti da 14,49 kWp ciascuno. Gli impianti fotovoltaici possono essere ceduti unitamente all’immobile con un supplemento sul prezzo.

Per ulteriori informazioni è possibile rivolgersi direttamente in agenzia.

UBICAZIONE E CONTESTO


Pozzolengo è un tranquillo comune situato in provincia di Brescia, al confine con le province di Verona e Mantova, in una posizione strategica tra il Lago di Garda e le principali arterie autostradali del Nord Italia (A4 e A22). Il paese è immerso nel verde delle colline moreniche ed è noto per il suo contesto paesaggistico, la qualità della vita e la vicinanza a centri turistici e industriali come Desenzano del Garda, Sirmione e Peschiera.

Mostra tutto

Nelle vicinanze

Trasporto pubblico Trasporto pubblico
Trasporto pubblico
100 m
Ricariche auto elettriche Ricariche auto elettriche
Relais Villa Belvedere Sirmione
1,2 Km
Scuole Scuole
Scuola statale primaria Anna Avigo Barbizzoli
1,0 Km
Scuola Secondaria di Primo grado Barbizzoli Migliavacca
1,0 Km
Scuole
2,8 Km
Farmacia Farmacia
Farmacia
680 m
Supermercati Supermercati
Supermercato Peroni
1,3 Km
Negozi Negozi
Delizie e sapori dei colli Snc Di Riglietti Maria & C.
490 m
Panificio e pasticceria Pasquali Orlando
820 m
Bar Bar
Gelateria artigianale
720 m
Bar Fiorella
760 m
Ristoranti Ristoranti
Pizzeria Muritì
220 m
Emme Zeta
300 m
Ristorante la Muraglia
560 m
Punto Pizza
720 m
Locanda Sole
720 m
Mostra tutto

Caratteristiche

Rif.:
61103363
Piano:
Terra
Posti auto:
20
Condizionamento:
Autonomo
Ascensore:
No
Riscaldamento:
Autonomo
Mostra tutto
Prezzo Prezzo
€ 1.500.000
Rata mutuo Rata mutuo
€ 7.071 / mese
Proponi il tuo prezzoProponi il tuo prezzo

Classe Energetica

Questo immobile è esente da classe energetica
Anno di costruzione:
1970
Riscaldamento:
Autonomo
Tipo impianto:
Ad aria
Tipo alimentazione:
Aria

Ti interessa visionare l'immobile?

Fissa un appuntamento  Fissa un appuntamento

Richiedi informazioni

Clicca su Leggi per aprire l'informativa
* Questi campi sono obbligatori

Calcola il tuo mutuo

Semplice e senza impegno
Anticipo

( % )
Mutuo

( % )

pochi semplici passi

inserisci i tuoi dati
Questionario completato
Grazie per aver richiesto un appuntamento senza impegno con un nostro Consulente del Credito e Assicurativo.

Hai inserito correttamente tutti i dati necessari e a breve riceverai una e-mail con un link da convalidare per inviare i tuoi dati.
Affiliato
Eurogarda Commerciale Srl
Via Cesare Battisti, 16 25017 Lonato Del Garda (BS)

Il nostro staff


  • Valeria Iacobenco
    Collaboratrice

  • Lorenzo Haxhiu
    Affiliato

  • Beatrice Lupi
    Collaboratrice

  • Enrico Lopedoto
    Affiliato
Via Cesare Battisti, 16 25017 Lonato Del Garda (BS)
Zona: Lonato del Garda
Mostra su mappa
Affiliato
Eurogarda Commerciale Srl
Via Cesare Battisti, 16 25017 Lonato Del Garda (BS)

2026 Tecnocasa Franchising S.p.A. - P. IVA 08365160152 - Via Monte Bianco 60/A 20089 Rozzano (MI). Ogni agenzia ha un proprio titolare ed è autonoma. Privacy policy | Policy utilizzo | Cookie policy