Capannone in vendita

Lonato Del Garda, Via Monico - Lonato
Informazioni in agenzia
2 locali 2 locali
4330 Mq 4330 Mq
12 bagni 12 bagni

Capannone in vendita

Lonato Del Garda, Via Monico - Lonato

Descrizione annuncio

COSA SAPERE DELL'IMMOBILE

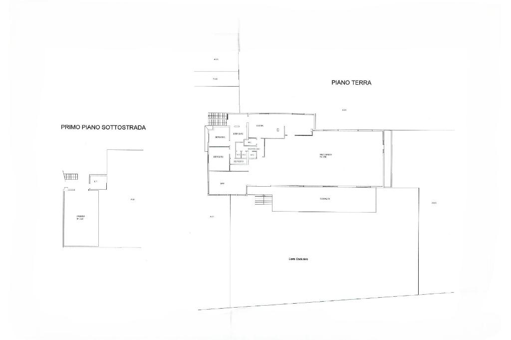
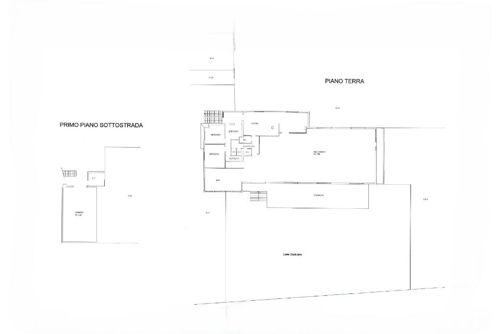
Capannone in acquisto a Lonato del Garda di circa 2450 metri quadri con circa 1550 mq di area esterna, con impianto di antincendio e impianto dall’arme.


DESCRIZIONE E PARTICOLARITA'

Proponiamo in vendita un immobile attualmente adibito a discoteca, con ristorante situato al piano primo, per una superficie coperta complessiva di circa 2450 metri quadri e un’area esterna di circa 1550 metri quadrati. La struttura, in buono stato manutentivo, è dotata di impianto elettrico da 120 kW, sistemi completi di riscaldamento e raffrescamento, impianto di illuminazione professionale, impianto d’allarme con videosorveglianza e impianto antincendio.

Gli spazi interni comprendono inoltre un’area dedicata agli uffici e circa undici servizi igienici, distribuiti per servire al meglio le diverse zone del locale. Il ristorante al piano primo, attualmente non utilizzato, rappresenta un’interessante opportunità per il futuro acquirente, consentendo la possibilità di sviluppare un format integrato ristorante discoteca o altre attività ricettive e di intrattenimento.

La proprietà si presenta come una soluzione ideale per chi desidera investire in un locale ampio, attrezzato e già predisposto per attività di svago e intrattenimento, con ulteriori potenzialità di sviluppo commerciale.


UBICAZIONE E CONTESTO

Lonato del Garda è un comune ben servito e strategico vicino alle principali vie di comunicazione, a pochi minuti dal Lago di Garda. Offre un contesto dinamico con servizi, attività produttive sviluppate e ottimi collegamenti con l’autostrada e i centri limitrofi.

Mostra tutto

Nelle vicinanze

Trasporto pubblico Trasporto pubblico
Lonato
Lonato
870 m
Trasporto pubblico
720 m
Ricariche auto elettriche Ricariche auto elettriche
GardaUno Lonato Famila
410 m
Ristorante Pizzeria Silvano - evway
780 m
Scuole Scuole
Istituto di Istruzione Superiore Luigi Cerebotani
1,1 Km
Scuola Secondaria di I Grado Camillo Tarello
1,2 Km
Farmacia Farmacia
Farmacia Morandi
360 m
Farmacia
880 m
Ospedali Ospedali
Azienda Ospedaliera di Desenzano del Garda
2,3 Km
Supermercati Supermercati
Famila
340 m
Esselunga
2,4 Km
Lidl
2,5 Km
Italmark
2,5 Km
Dpiù
2,8 Km
Bar Bar
Bar
1,9 Km
Art Club
2,1 Km
Ristoranti Ristoranti
Pizzeria
760 m
Ristoranti
870 m
Agriturismo Cascina Graziosa
1,7 Km
La Cavallina
2,3 Km
Sushiko
2,5 Km
Mostra tutto

Caratteristiche

Rif.:
61152142
Piano:
Terra con giardino di 2
Totale piani:
2
Condizionamento:
Autonomo
Ascensore:
No
Riscaldamento:
Autonomo
Mostra tutto
Prezzo Prezzo
Informazioni in agenzia
Proponi il tuo prezzoProponi il tuo prezzo

Classe Energetica

B
B
B
B
B
B
B
B
B
EP globale non rinnovabile:
420.99 kW h/m² anno
EP globale rinnovabile:
215.53 kW h/m² anno
EP invernale del fabbricato:
EP estiva del fabbricato:
Anno di costruzione:
1990
Riscaldamento:
Autonomo
Tipo impianto:
Ad aria
Tipo alimentazione:
Aria

Ti interessa visionare l'immobile?

Fissa un appuntamento  Fissa un appuntamento

Richiedi informazioni

Clicca su Leggi per aprire l'informativa
* Questi campi sono obbligatori
Affiliato
Eurogarda Commerciale Srl
Via Cesare Battisti, 16 25017 Lonato Del Garda (BS)

Il nostro staff


  • Valeria Iacobenco
    Collaboratrice

  • Lorenzo Haxhiu
    Affiliato

  • Beatrice Lupi
    Collaboratrice

  • Enrico Lopedoto
    Affiliato
Via Cesare Battisti, 16 25017 Lonato Del Garda (BS)
Zona: Lonato del Garda
Mostra su mappa
Affiliato
Eurogarda Commerciale Srl
Via Cesare Battisti, 16 25017 Lonato Del Garda (BS)

2026 Tecnocasa Franchising S.p.A. - P. IVA 08365160152 - Via Monte Bianco 60/A 20089 Rozzano (MI). Ogni agenzia ha un proprio titolare ed è autonoma. Privacy policy | Policy utilizzo | Cookie policy