Capannone in affitto

Lonato Del Garda, Via Campagna sopra - Campagna Sopra
Informazioni in agenzia
13 locali 13 locali
2500 Mq 2500 Mq
5 bagni 5 bagni

Capannone in affitto

Lonato Del Garda, Via Campagna sopra - Campagna Sopra

Descrizione annuncio

COSA SAPERE DELL'IMMOBILE

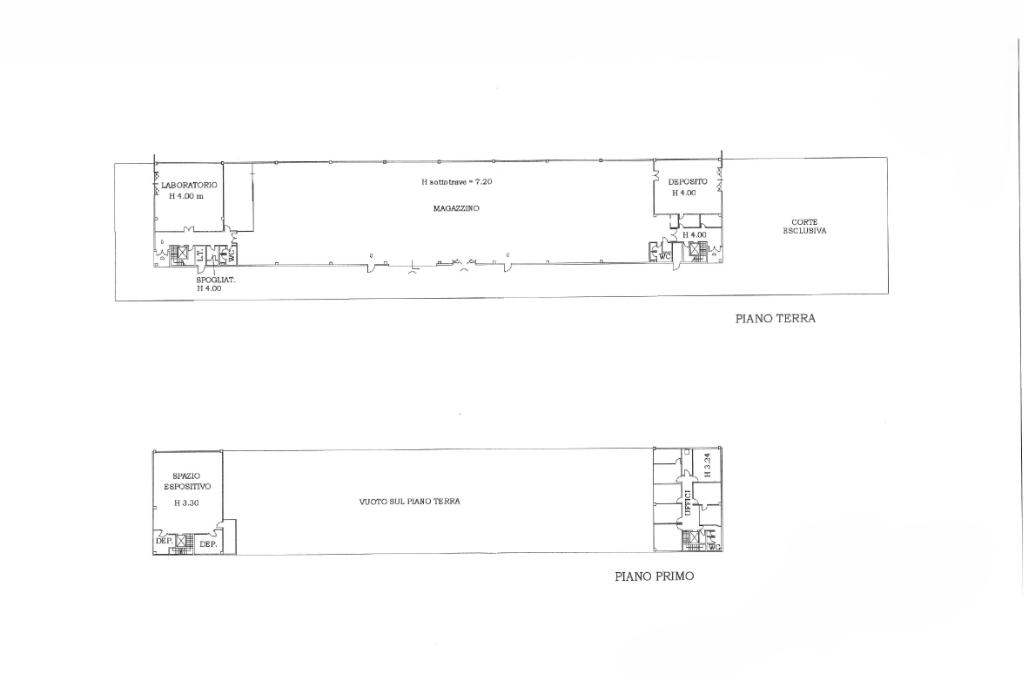
L’immobile che proponiamo in locazione è un capannone con una superficie di circa 4000 metri quadrati ed è dotato di uffici, sevizi igienici e parcheggio.

DESCRIZIONE E PARTICOLARITA'

Proponiamo in locazione un capannone industriale di complessivi 4.000 metri quadrati.

L’immobile è così composto: Superficie coperta (capannone): circa 2.500 metri quadrati, con altezza sotto trave di 8,25 metri. Uffici: circa 400 metri quadrati, suddivisi in due campate. Area esterna: circa 2.000 metri quadrati, perfettamente fruibile per movimentazione merci, parcheggio o area manovra.

L’immobile è dotato di carroponte con portata di 16 tonnellate, impianto di condizionamento per gli uffici, impianto di riscaldamento e sistema di abbattimento della temperatura per l’area produttiva, oltre a un impianto elettrico con potenza pari a 50 kW – con possibilità di incremento – e impianto per l’aria compressa. Dispone inoltre di 5 servizi igienici e spogliatoi. L’accessibilità è garantita dalla presenza di un doppio accesso carraio e da portoni di varie dimensioni, studiati per facilitare il transito e la movimentazione di veicoli industriali e merci. La posizione dell’edificio consente un collegamento immediato con le principali arterie stradali della zona, rendendo questa soluzione ideale per aziende che necessitano di una sede funzionale, efficiente e ben collegata.

UBICAZIONE E CONTESTO

Lonato del Garda, il capannone che stiamo proponendo in locazione è posto al piano terra. È ubicato in Via Campagna Sopra, difronte all’autostrada A4 Milano - Venezia. Inoltre, è ben collegata alla rete stradale provinciale, facilitando gli spostamenti verso altre località del Lago di Garda e oltre.

Mostra tutto

Nelle vicinanze

Trasporto pubblico Trasporto pubblico
Lonato
Lonato
1,8 Km
Trasporto pubblico
1,2 Km
Ricariche auto elettriche Ricariche auto elettriche
GardaUno Lonato Famila
2,1 Km
Ristorante Pizzeria Silvano - evway
2,1 Km
Scuole Scuole
Scuola Secondaria di I Grado Camillo Tarello
1,3 Km
Istituto di Istruzione Superiore Luigi Cerebotani
1,4 Km
Farmacia Farmacia
Farmacia
1,6 Km
Farmacia Morandi
2,1 Km
Supermercati Supermercati
Famila
2,2 Km
Bar Bar
Bar
1,0 Km
Ristoranti Ristoranti
Ristoranti
1,1 Km
al Folzone
1,8 Km
Locanda Bettola
2,0 Km
Pizzeria
2,1 Km
Mostra tutto

Caratteristiche

Rif.:
61052314
Piano:
Su più livelli di 2 con ascensore
Totale piani:
2
Box:
1
Posti auto:
10
Condizionamento:
Autonomo
Mostra tutto
Prezzo Prezzo
Informazioni in agenzia

Classe Energetica

E
E
E
E
E
E
E
E
E
EP globale non rinnovabile:
48011.00 kW h/m² anno
EP globale rinnovabile:
3730.00 kW h/m² anno
Anno di costruzione:
2009
Riscaldamento:
Autonomo
Tipo impianto:
Ad aria
Tipo alimentazione:
Aria

Ti interessa visionare l'immobile?

Fissa un appuntamento  Fissa un appuntamento

Richiedi informazioni

Clicca su Leggi per aprire l'informativa
* Questi campi sono obbligatori
Affiliato
Eurogarda Commerciale Srl
Via Cesare Battisti, 16 25017 Lonato Del Garda (BS)

Il nostro staff


  • Valeria Iacobenco
    Collaboratrice

  • Lorenzo Haxhiu
    Affiliato

  • Beatrice Lupi
    Collaboratrice

  • Enrico Lopedoto
    Affiliato
Via Cesare Battisti, 16 25017 Lonato Del Garda (BS)
Zona: Lonato del Garda
Mostra su mappa
Affiliato
Eurogarda Commerciale Srl
Via Cesare Battisti, 16 25017 Lonato Del Garda (BS)

2026 Tecnocasa Franchising S.p.A. - P. IVA 08365160152 - Via Monte Bianco 60/A 20089 Rozzano (MI). Ogni agenzia ha un proprio titolare ed è autonoma. Privacy policy | Policy utilizzo | Cookie policy