Capannone in affitto

Desenzano Del Garda, Via Piave - Menasasso
Informazioni in agenzia
5 locali 5 locali
1000 Mq 1000 Mq
5 bagni 5 bagni

Capannone in affitto

Desenzano Del Garda, Via Piave - Menasasso

Descrizione annuncio

COSA SAPERE DELL'IMMOBILE

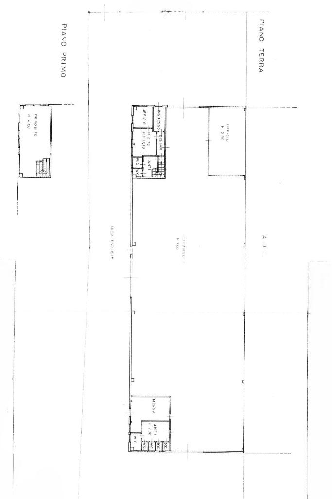
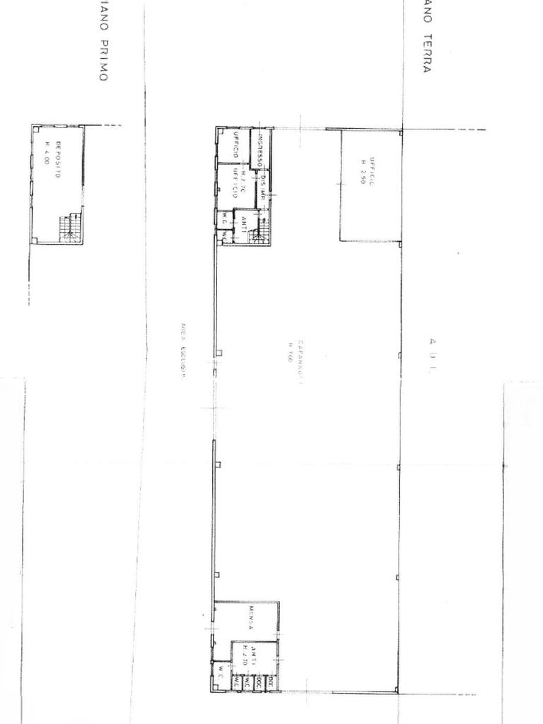
Il Capannone che proponiamo in locazione vanta una superficie calpestabile di circa 1.800 metri quadrati, con superficie coperta di 1000 metri quadrati e area esterna di 800 metri quadrati.

DESCRIZIONE E PARTICOLARITA'

Capannone in affitto a Desenzano del Garda, verra consegnato ristrutturato nel 2025. L’immobile, costruito nel 1993, ha una superficie totale di 1.800 metri quadrati e si compone di un capannone principale di 1.000 metri quadrati con altezza interna di 7 metri, lunghezza 50 metri e larghezza 20 metri e area esterna di 800 metri quadrati.

È dotato di tre portoni industriali da 5,3 x 5 metri che consentono un facile accesso per le operazioni di carico e scarico. Sono presenti le mensole per il carroponte con portata di 10 tonnellate, impianto elettrico con potenza di 30 kW, impianto di riscaldamento e raffrescamento solo per gli uffici, e predisposizione per l’installazione di un impianto ad aria compressa.

Completano la proprietà un’area uffici di 80 metri quadrati suddivisa in due piani, un locale tecnico di circa 30 metri quadri ed un'aria dedicata agli spogliatoi.

La soluzione è ideale per attività produttive o artigianali che necessitano di ampi spazi, impianti efficienti e una posizione strategica. Disponibile da subito. Per ulteriori informazioni o per fissare un appuntamento, non esitare a contattarci!!


UBICAZIONE E CONTESTO

Desenzano del Garda, il capannone che proponiamo è ubicato si trova in Via Piave zona industriale, vicino a tangenziali.

Mostra tutto

Nelle vicinanze

Trasporto pubblico Trasporto pubblico
Desenzano del Garda - Sirmione
Desenzano del Garda - Sirmione
2,6 Km
Trasporto pubblico
2,6 Km
Ricariche auto elettriche Ricariche auto elettriche
Desenzano Motori Srl | EnelX
600 m
CC Lonato del Garda Via Mantova | EnelX
1,1 Km
Burger King Lonato del Garda | evway
1,2 Km
Centro Commerciale Iper Lonato
1,6 Km
Scuole Scuole
Scuole
2,9 Km
Istituto tecnico e Professionale Bazoli-Polo
2,9 Km
Farmacia Farmacia
Farmacia San Giovanni Battista
1,3 Km
Iper Farma
1,4 Km
Supermercati Supermercati
Iper Lonato
1,4 Km
Esselunga
1,8 Km
Lidl
2,6 Km
Italmark
3,0 Km
Negozi Negozi
Treesse
1,5 Km
Bar Bar
Bar
340 m
Art Club
1,1 Km
Olimpia
2,7 Km
Milky Bar
2,9 Km
Ristoranti Ristoranti
Agriturismo Cascina Graziosa
1,6 Km
La Cavallina
1,9 Km
Ristorante Pizzeria La Lucciola
2,2 Km
Sushiko
2,7 Km
Bar Trattoria Ottolini
2,7 Km
Mostra tutto

Caratteristiche

Rif.:
61096336
Totale piani:
2
Posti auto:
10
Condizionamento:
Autonomo
Ascensore:
No
Riscaldamento:
Autonomo
Mostra tutto
Prezzo Prezzo
Informazioni in agenzia
Spese annue Spese annue
€ 0

Altre caratteristiche

Descrizione dei locali
Bagno Con Finestra

Classe Energetica

E
E
E
E
E
E
E
E
E
EP globale non rinnovabile:
285.95 kW h/m² anno
EP globale rinnovabile:
273.37 kW h/m² anno
EP invernale del fabbricato:
EP estiva del fabbricato:
Anno di costruzione:
1993
Riscaldamento:
Autonomo
Tipo impianto:
Ad aria
Tipo alimentazione:
Aria

Ti interessa visionare l'immobile?

Fissa un appuntamento  Fissa un appuntamento

Richiedi informazioni

* Questi campi sono obbligatori
Affiliato
Eurogarda Commerciale Srl
Via Cesare Battisti, 16 25017 Lonato Del Garda (BS)

Il nostro staff


  • Valeria Iacobenco
    Collaboratrice

  • Lorenzo Haxhiu
    Affiliato

  • Beatrice Lupi
    Collaboratrice

  • Alissa Nicoletti
    Coordinatrice

  • Enrico Lopedoto
    Affiliato
Via Cesare Battisti, 16 25017 Lonato Del Garda (BS)
Zona: Lonato del Garda
Mostra su mappa
Affiliato
Eurogarda Commerciale Srl
Via Cesare Battisti, 16 25017 Lonato Del Garda (BS)

2025 Tecnocasa Franchising S.p.A. - P. IVA 08365160152 - Via Monte Bianco 60/A 20089 Rozzano (MI). Ogni agenzia ha un proprio titolare ed è autonoma. Privacy policy | Policy utilizzo | Cookie policy